学会看户型图,才对得起你摸爬滚打的血汗钱!

日期:2017-11-19 14:15:51


“买套房子穷三代 选错户型悔一生”



居住之前是装修,装修之前是买房,买房时,首要考虑因素肯定是价格和地段,除此之外,户型也很重要。


买房族如果看不懂户型图,那可要真的抓瞎了。攒了多年的钱,好不容易凑了个首付,当然要选一个满意的房子。


所以你得会看户型图,可以直观了解空间,有一个装修房子的印象布局,不然采光不行,格局不好,风水不对,都是最开始不会看户型图被忽悠的。






01




/ 常 见 标 识 /


户型图上的三大要素是图画、数字和文字,其中主要以图画来表示房屋结构以及功能分布,所以,如果你不认识这些图标,你就不可能看懂户型图。





1、承重墙

黑粗的线条就是承重墙,你要怎么拆墙怎么改格局都可以,但对于承重墙,原则就是千万不要动。


2、外开门 内开门

扇形向外开的是外开门,向内开的是内开门。现在的房子基本上都是——大门外开,卧室门内开。


3、空调外机位

一般客厅和卧室外墙都应该留有统一的空调机位置,一个矩形中间一个×的就是空调外机位。


4、三条杠的窗户

户型图上的3条杠就是窗户了,长短不一,短的是小窗户,长的是落地窗。


5、衣柜位置

房间墙上一个长方形上加很多横杠的就是衣柜位置,看户型图可以大概计算衣柜可以有多大。


6、标尺

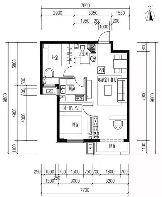
户型图里的标尺也不容忽视,有助于帮助我们了解各个功能区的大小,根据数字相乘计算,用眼睛直接看并不直观。有些房子三居室四居室,看起来很丰满,其实每个空间都极其小。


如下图,北侧的次卧宽2.7米、长3.3米,面积有9平米左右,足够放下床和书桌,房间最重要的就是大小合适。




而像下面这种户型图,虽然非常貌美,看起来非常符合时下审美,所有家具的位置也都给你标注了,但是连尺寸都没有,其实作用并不大。




要想看懂户型图,最好得先明白这些图标的意义






02


/ 看尺寸数字 /


每个户型图上在墙的外围都会有尺寸的标准,通过这些尺寸,我们可以清楚测量各个功能区间的面积。都是mm为单位哦,比如2000就是2米。




不过,要注意的是,这个尺寸是包含了墙体的厚度的,所以,算出来的是建筑面积,而不是套内面积。

户型图上看到房间挺大的,怎么收楼时感觉那么窄小,怎么回事?

问题可能就出在示意家居的尺寸上,有时候开发商为了显示出房间的宽敞感,会在户型图上适当将家居尺寸画小,所以,大家一定要警惕“不可信”的家具,自己要对常用家具尺寸心中有数。




认识了这些,你还要注意下面这些点:


① 要记住一些基本数据标准:客厅开间至少要有3.5米,否则坐在沙发上看电视眼睛很难受。卧室长和宽最好别低于3米,否则床、衣柜和梳妆台将难以共存。

② 大落地窗、大飘窗不宜太多,因为这样会减少了墙面的有效使用面积,原本可以墙上钉隔板、做整面墙柜子,但现在都办不到了,这样收纳面积就很少了。

③ 使用率是住宅套内净面积(使用面积)和住宅面积的比,一般70%~80%左右;实用率是套内建筑面积和住宅面积之比。

实用率大于使用率,有些开发商用"实用率"代替"使用率"并混淆这个概念来吸引购房者。(我猜你已经眼花分不清了)

④ 按国家有关规定,阳台、露台、飘窗等这些地方本身就只能算半面积或不算面积,这部分面积本来就不应当计入建筑面积,应属购房人所有。另外赠送面积不属于产权面积,不会写入合同内。



03


/ 怎么样才是好户型 /

整体形状方正

方正的户型并不是一直的标准,曾经偏爱长方形。20 世纪的建筑大师们厌倦了古代城堡和宫殿的长方形,便把目光转向了正方形。


在建筑师勒·柯布西耶(Le Corbusier)看来,正方形是一种合理、理性的象征,是近代的处理方式。日本建筑大师隈研吾曾评论道:如果放任使用长方形的话,就会显得很野蛮、幼稚。


现在方正户型才是香饽饽,方正不是说非得一个规矩的正方形,而是各个房间和功能区域的形状是方正的矩形。这样就意味着空间利用不会出现浪费的情况。




开间偏大、进深偏小


开间直接关系到房间的宽阔度和房间里家具的摆放是否有足够空间,同时影响到自然采光的问题。如果房间进深偏大,光线很难照到深处角落。

是不是一脸懵逼,什么是开间,什么是进深?

我们把房间的主采光面称为开间(有些地方称作面宽),与其垂直的称为进深。

也可根据房间门的朝向来确定开间和进深,房门进入的方向的距离为进深,左右两边距离为开间;

卧室以床顺着摆放的方向为开间,床头依靠的墙宽度为”进深“。



因为开间反映的是户型的采光情况,如果开间狭窄,进深偏宽则不利于采光、通风。如果开间过大进深偏小,则不利于房间保温、浪费能源。

开间和进深的比例要适用,一般意义上的户型方正就是指户型的进深与开间之比合理,进深/开间一般介于1~1.5之间。

下面要说的就是横厅和竖厅,又一脸懵逼?很多人对于这两个厅傻傻分不清,其实它们的不同就在于进深和开间的相对大小。

如果客厅进深小于开间,那么这种客厅则为横厅,反之则为竖厅。


横厅减少了过道空间,提高了户型的使用率,更大气,并且采光和通风效果更好。

缺点就是客厅的沙发不能靠墙,不符合中国人背有”靠山“的习俗追求;客厅与房间遥遥相望,私密性较低。

竖厅的话各个功能区布局分明,各有界限,动线合理;沙发可以靠墙摆放,符合习惯。

缺点是采光面较小,过道会占用一定面积,浪费空间,实际可用面积变小。



04

/户型没有暗间/


房间都是坐北朝南当然是最理想的,但是,总有这样那样的不完美,比如暗间。


暗间是多少人心中的痛,一个完全没有窗户的房间真的是硬伤。除了无法自然采光,通风也是大问题。


现在的新房多数暗间被安排在卫生间(暗卫不是白叫的),家里哪最暗,一般都是卫生间。(厕所也想哭好不好)厕所通风不好,湿气有较大,白天进入也需要灯光。



静线和动线合理,干湿分区


动静区分:

卧室+书房+主卫=静区

动线一般是客厅和厨房要和卧室休息区合理分开,各在不同的两边,这样不会打扰到休息。厕所和厨房一般较潮湿,所以和卧室最好也要分开。




干湿分区:

厨房+卫生间=湿

干湿分区就是指厨房、卫生间这两个湿气较重且较容易产生脏污的房间应与精心装修的怕水怕脏的卧室客厅等尽量分离。


卫生间现在就很流行干湿分离,这样能够减少卫生间的潮湿感,也能够提高卫生间的使用率,当然,卫生间大一丢丢更好实现干湿分离。




房间大小要适中

房间越大越好?非也非也。整套房间的设计要考虑比例和布局。


一般卧室、客厅的位置是相对固定的,创意亮点往往体现在其他功能性空间的处理上。厨房、餐厅、卫生间,是必须仔细关注的三个位置。


你可以假想日常的生活状态,就能判断出设计是否合理。比如,卫生间离次卧会不会太远,餐桌的摆放空间是否足够,或者,当卫生间的门恰好打开时,餐厅里的人会不会能够看见马桶,等等。


原则上厨房、餐厅、厕所的位置至少应具足够的私密性。


明白了这些,去买房时看到户型图是不是底气足了很多!

当然极其完美的户型很难找到,我们还是要综合价格、地段、户型条件,综合考虑,最适合自己的就是最好的。


电话

在线报价

免费设计