10个超靓小户型案例,90㎡以下可以照搬

日期:2015-05-19 17:09:47

当原木遇上简约,成就了小空间的温馨,大空间的优雅。

10个最受欢迎的原木简约案例,送给你。

01. 把MUJI搬回家

02. 一起来看抹茶控的家

03. 疯狂设计一层变两层

04. 文青的安乐窝

05. 为宝宝量身打造的家

06. 设计很洋气的现代风

07. 傻人有傻福好像是真的

08. 这样的家才叫做过日子

09. 拥有豪宅品位的两居室

10. 有个漂亮厨房和空卧室

把MUJI搬回家


01

业主:小米

户型:二室一厅

面积:74.4㎡

工程:整体翻新,打造日式温馨风

费用:18万(硬软装)

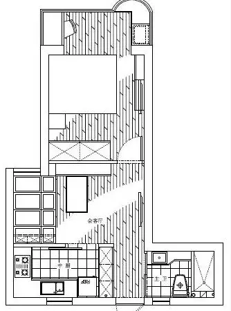
▲户型平面图。

▲玄关,原木鞋柜、板凳。

▲餐厅,长形餐桌,靠墙摆放。

▲客厅,书架成了沙发背景墙。

▲阳台,改造成榻榻米式地台+书房。

▲阳台书房,特写镜头。

▲卧室,简约置物板。

▲卧室,手工打造的衣柜+电视柜,收纳性强。

▲厨房,简洁明亮,通风透气性好。

▲洗衣机,摆到家中的一个过道角落。



一起来看抹茶控的家


02

业主:小春

户型:二室一厅

面积:88㎡

项目:抹茶主题的旧房改造

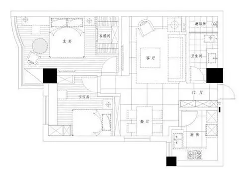
▲户型平面图。

▲玄关入口,吧台、餐厅、客厅、阳台,一字排开。

▲吧台,小巧实用。

▲厨房,开放式。

▲客厅,从厨房拍过去的全貌。

▲客厅,全是抹茶绿的小物件。

▲客厅,正面照。沙发背景挂画,与沙发抹茶垫子相衬。

▲餐厅,在厨房与客厅之间,靠隔断墙摆放。

▲卧室,舒适的飘窗。

▲卧室,进门的角落,靠墙做了一个小的办公桌。

▲书房,抹茶绿的沙发床。



疯狂设计一层变两层


03

业主:小黑

户型:一室户

面积:66㎡

翻新项目:挑高设计,一层变两层

费用:12万

▲一楼二楼空间结构,大概可以看出来。

▲客厅,茶几是原木的。

▲餐厅+书房+厨房,全开放式。

▲餐桌,将厨房与书房进行简单隔断。

▲书房,面积不大,却很实用。

▲二楼过道,做成收纳场所。

▲卧室,往外看能看到楼梯。

▲卧室,从外向内看全貌。



文青的安乐窝


04

业主:理奈

户型:两室两厅

建筑面积:85㎡

项目:二手房翻新,打造日式原木风

费用:23万(半包、硬装+大软装+家具家电)

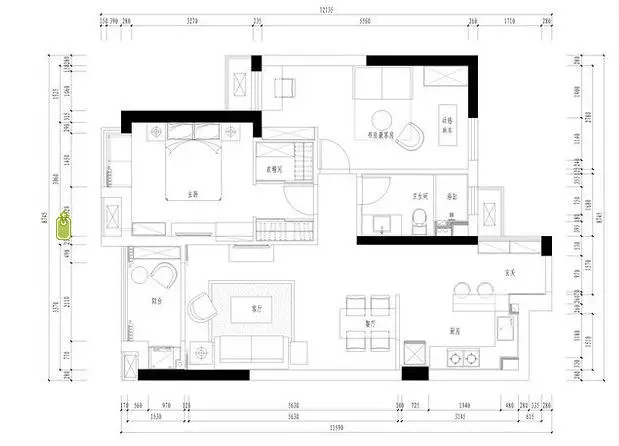
▲户型平面图。

▲玄关,挂钩摆放些随手的物件。

▲客厅、餐厅,全景图。

▲餐厅,餐桌椅+卡座设计,简单实用。

▲客厅,以及工作阳台全景图。

▲客厅,一侧墙角打造了书架,充分利用角落空间。

▲阳台,改造成工作区。空调背后那块,是一个置物柜。

▲卫生间,在玄关进门左手边。干湿分离。

▲卫生间,干区,镜面柜非常实用。下面的台盆柜也可以摆放清洁用具,实用。

▲卫生间,湿区,地砖的选色非常喜欢。

▲厨房,小地方充分利用,看到微波炉和烤箱的设计了么?

▲主卧,带风扇的吊灯现在很流行。

▲次卧,家里艺术气息最浓郁的地方。



为宝宝量身打造的家


05

业主:NANA

户型:一室户

面积:45㎡

项目:旧房翻新,安全养育孩子的家
费用:12万

▲户型平面图。

▲玄关,白色鞋柜,简单实用。

▲餐厅,卡座的设计,适合宝宝在上面爬。吃饭的时候,可以把她锁在里面。

▲餐厅的墙上挂了电视机,可以一边吃饭一边看电视。

▲厨房,外面的墙就是卡座的一边,做了书架的设计。

▲厨房,原木色的橱柜,显得清新素雅。

▲厨房,冰箱一侧的墙面做成了涂鸦墙,宝宝可以在这里尽情涂画。

▲卫生间,白色软包的墙面,不担心宝宝磕到。

▲卫生间,台盆一边摆了一个小方凳,小家伙就可以自己洗手了。

▲卫生间,开出的小窗,保证了通风透气。

▲主卧,白色软包床头板,清新素雅。

▲卧室阳台,改造成小的办公区,可以在这儿上网。

▲卧室阳台,同时改造出洗衣机摆放区+储物区,也是家里的小小后花园。



设计很洋气的现代风


06

业主:小美

户型:两室两厅

面积:85㎡

项目:旧房改造,洋气有创意

费用:23万

▲客厅,餐厅,开放式设计。

▲客厅,采光非常好。

▲客厅,沙发背景墙改造成玻璃成列柜。

▲灰色沙发,搭配原木茶几、藤艺蒲团,体现日式风情。

▲餐厅,一旁是厨房。

▲次卧,保留飘窗,改造出大衣柜,增加收纳性。

▲在衣柜与门的缝隙间,做出一个隐藏的书架。

▲主卧,极简的设计。

▲卫生间,干区,安了超大的穿衣镜。

▲卫生间,湿区,玻璃淋浴房。



傻人有傻福好像是真的


07

业主:小鱼儿

户型:两室一厅

面积:89㎡

项目:旧房翻新,打造独立书房空间

费用:5.5万

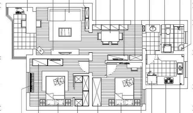
▲户型平面图。

▲客厅,原木制作的电视柜。

▲客厅,正面照。

▲餐厅,与客厅没有隔断。

▲餐厅,餐桌椅的设计都很西式。。

▲窗台,改造成小的吧台,或者是办公区。

▲主卧,原木的电视柜和门。

▲儿童房,原木打造的书架、书桌和床头柜。

▲书房,美式风格的书桌。

▲厨房,同样的美式风格。

▲卫生间,淋浴房、灰色地砖与原木色房门相衬。台上盆是当下的流行。



这样的家才叫做过日子


08

业主:小桃

户型:一室户

面积:60㎡

项目:旧房改造,打造温馨田园风

费用:12万

▲客厅,玻璃推拉门左边是餐厅。将原本一居室的客厅一分为二。

▲餐厅,透过玻璃推拉门能够看到里面的客厅。

▲餐厅,一旁辟出一块地方,摆放了书桌,算是办公区。

▲客厅,原木茶几、电视组合柜,与地板搭配,自然温馨。

▲卧室,床、床头柜都是原木的。

▲超大的衣柜,满足了收纳需求。

▲厨房,没有走原木色,而是选择了白色,显得清爽。

▲卫生间,墙砖颜色的选择略微失败了,铺贴方式的混搭也显得有些凌乱。

▲即使是放不了多少东西的小阳台,也打了一个吊柜。小户型里真是寸土寸金啊。



拥有豪宅品位的两居室


09

业主:琴琴

户型:两室一厅

面积:67㎡

项目:旧房改造,摩登靓丽

费用:25万(软装+硬装)

▲户型平面图。

▲客厅,房型比较端正,方形原木茶几成为中心。

▲沙发背景墙,以两幅画作为点缀。

▲餐厅,与客厅开放式设计。

▲餐桌,选择白色长形,而非原木色,凸显了现代时尚之感。

▲厨房,简单实用。

▲卫生间,干湿分离,干区设在外面的过道处。

▲主卧,超强原木收纳衣柜。

▲主卧,与阳台无隔断,同时各摆了一个白色的柜子,增加储物空间。

▲儿童房,特地打造了书桌,方便孩子写作业。



有个漂亮餐厅和空卧室


10

业主:小项

户型:两室一厅

面积:85㎡

项目:旧房翻新,日式简约

费用:18万

▲玄关,用色是亮点。

▲客厅,原木沙发加了白色软垫,不规则玻璃茶几则添加了现代感。

▲客厅,阳台装了白色百褶帘,防止阳光过强,地板掉色。

▲餐厅,就在客厅一旁,能一边吃饭一边看电视。

▲厨房,用玻璃门做了隔断,算是半开放式设计。

▲卧室,极简设计。

▲同样安装了百褶窗帘。

▲书房,与主卧同款的床,配上白色书桌,有种宁静之美。

电话

在线报价

免费设计