30平“秒变”60平!丈母娘看后直拍大腿:今天就领证!

日期:2016-07-18 12:29:17


你说50平米房子太小,

别人30平也可以很惬意。

小户型寸土寸金,物尽其用才是王道,快看看我们快点装修的设计师是如何让30平变60平的!看完一下案例相信你会跟我一样,秒秒钟爱上小户型。


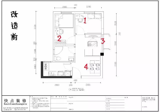
布局规划前



1、主卧空间小,没有衣柜,空间利用率极低;

2、次卧衣柜所处位置太“勉强”;

3、阳台毫无“利用”价值;

4、餐厅没有阳光,令人感觉沉闷;

5、储物空间几乎为零。



布局规划后



1、空间合理利用,主卧由“小”变“大”;

2、次卧超大衣柜,再也不用担心衣服没地儿放了;

3、打通阳台,让阳光更好的照射进来;

4、餐厅做酒柜,增加空间的立体感;

5、内嵌储物柜,增加空间利用。



实景图



简单温馨的客厅,没有太多的造作于约束,

白色的背景墙、淡蓝色的墙面,勾勒出淡淡的优雅,

在保留了家居的色泽和质感的同时,

又注意适应现代生活空间。



地中海风格的餐桌使用实木制作,

展现精致的木工工艺,充分体现休闲自然,

精致的器皿和盆栽植物,

都散发的质朴、恬静与清新的气息。




无过多修饰的窗帘点缀了整个空间的色彩,

不经一种也成就了另外一种休闲式的浪漫,

白色花架立于一旁,于休闲之中,

飘荡出一丝丝春和阳光的气息,

休闲、随意而不失风格。



混搭,是装下自己对幸福所有的幻想

本案通过对空间布局的合理安排,

对色彩和情感的倾心设计,

打造出属于自己的生活态度,

让空间大了一倍,生活拒绝压抑。



PS:业主G先生告诉我们

他在装修后不久

升职加薪、当上总经理...

迎娶白富美,走上人生巅峰!

是的!他领证了!

他和她的女票手牵手走进了婚姻的殿堂!

恭喜恭喜!(撒花ing)

祝G先生新婚快乐!(鼓掌ing)



此事告诉了我们

房子装得好,老婆“回家”

就连丈母娘也直拍腿让赶紧去领证呢!




还在担心房子小?

小户型秒变大户型。

【一键变大,我也要领证】


现在预约量房,还可获得限量版

迪士尼蝙蝠侠大战超人充电宝套装


哇!好可爱!

赶紧约量房吧!


【我要量房】

1、免费热线:400-0992-680;

2、电话:18566221792;

3、微信:kdzx666 或是客服QQ:3083672871;

4、点击“阅读全文”。

电话

在线报价

免费设计