永州装修屋型有问题?这里解决你的烦恼!
装修过程中各有各的问题,但往往有一个问题是相似的:房型规划!开发商按照大众平均水平设计的房型,就好像一件均码的衣服,能穿,但是并不完全合身。而真正适合你的房子,应该像高定一样,为你量身定制。那么,我们在拿到房子后,也需要专业的规划设计,将房子“剪裁得体”。可以看下面两个例子。
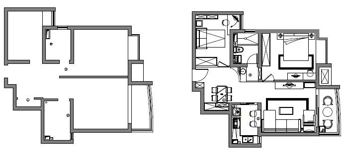
问题1 小角落多,收纳地少
这套房子面积不小,业主却依然有自己的烦恼。由于家里的杂物很多,所以对收纳的要求很高。而这套居室的小角落很多,感觉较难利用起来。同时业主也希望将客卫做大一些。
改动建议
1、利用小角落增设鞋柜
借用原房型中不规则的角落部分,做了一个相对较大的柜子。不仅规范了房型,也起到了收纳作用,可谓一举两得。
2、独立储藏室并入主卧
将原本独立的一个小储藏室并入主卧之中,扩充了主卧的空间,也方便了业主的日常生活。
3、利用走道扩充客卫
原本书房含有一个走道,空间很难利用。设计师将此处空间并入了客卫,既不影响书房的基本格局,也增大了客卫的面积。
案例参考
▲原来的厨房有10㎡,平时用到的却不多,设计师就把这个空间彻底打开,一块实木板子搭在橱柜上就成为了三口人的餐厅,好看实用又节约地方,还起到了划分客厅与厨房空间的作用满足了李先生家的生活习惯。
▲玄关角落刚好放置一个鞋柜,不仅没有突兀感,更加完整了室内功能,既实用又美观。
问题2 餐厅房型不够好,能利用的空间不多
这套餐厅的房型和采光不太好,是设计的一个重点。设计师并没有对房型做过多的改动,而是在局部增减一二,既没有产生过多的拆建费用,也使居室的格局更加精致、合理。
改动建议
1、拆除餐厅多余墙体
该区域原本的墙体显得多余,也不能使空间利用最大化,所以敲除了原本的墙体,使空间更完整。
2、隔断增添安全感
进户门正对着卧室让业主觉得没有安全感,设计师通过弧型的隔断使区域更为明显,也起到了装饰的作用。后边设计成干湿分离的卫生间增添了空间的利用和实用性。
3、增加厨房采光
厨房没有采光不好,所以设计师把靠近客厅的一面墙设计为了透明玻璃,使空间更为通透和时尚。
案例参考
▲厨房原先是封闭式的,为了能够让家中保持连贯性,将它改造成半开放式的设计。设计师在厨房的外侧设计了一个立川折叠式拉门,平常就是一个开放式厨房,油烟大时可以拉上隔除油烟。
▲入户就是客餐厅,客餐厅一体的结构布局可以把小空间做大,从实用和舒适性上都得到很好的平衡,吊顶也拒绝单调的大白墙,顶上的一圈黑色线条勾勒了一个宽阔的空间。
内容为转载或编者观点,不代表装一网意见,不承担法律责任
装一网公众号

装一网家居号

热门文章
猜你喜欢
麓园-现代轻奢

重庆佳天下装饰 荣盛城91平现代风格装修效果图

红叶花园-90平-30w

【合肥红点装饰】名人御苑160平米复式美式乡村风格

翡翠天元

名仕装饰——天祥广场现代简约风

【桂林星艺装饰】麓湖空中墅270平奶油风全案实景完工案例

【盛世和家装饰】87㎡金榈湾+奶油风+11万

厚德广厦

深圳乐峰装饰天鹅堡240㎡五房两厅两卫轻奢风格案例

免费设计
在线报价
智选公司
全屋定制
整体软装