想省钱?弘阳 ▪ 时光澜庭3套户型,原来可以这样装!
生活里的时光,让阳光洒进来,在我们的世界里找寻一片静谧乐园…………常常想,什么样的设计 ,是好设计;华丽的,酷酷的,温馨的,简单的?设计者喜欢的,亦或是居住者喜欢的……正如一句话所说,一千个人心中,有一千个哈姆雷特;自己喜欢的,也许才是最好的…………
Part.1
住宅面积:118平方
住宅风格:极简风格
主案设计:首席设计师——陈峰
关于房主:
屋主是一位事业有成的年轻企业家,有一位美丽的妻子和活泼聪明的孩子。在一天早上,小孩脱口而出的:爸爸,你已经有一个月没有陪过我玩耍了。回想自己在家不是在睡觉,就是在去睡觉的路上,从来都没有陪过自己的妻儿。因此,在讨论设计这套房屋时,屋主就提出要有与家庭成员陪伴的空间,即使在忙的时候也想看到家人。
原始户型:

原户型优点
1、客厅开阔,可做多功能客厅使用,墙角摆台钢琴,整个空间都升华了起来。
2、3房卧室,满足一般住宅要求,想要二胎的家庭注意了,买它。
3、客厅、主卧大面积采光,视野开阔,明媚的阳光让人心情都好了起来。
原户型缺点
1、没有满足业主需求,在厨房做饭的时候,不能看到家人。
2、玄关昏暗,进门狭小,没有鞋柜的位置。
3、北卧室没有阳光,靠近大门,噪音大,会影响小孩发育。
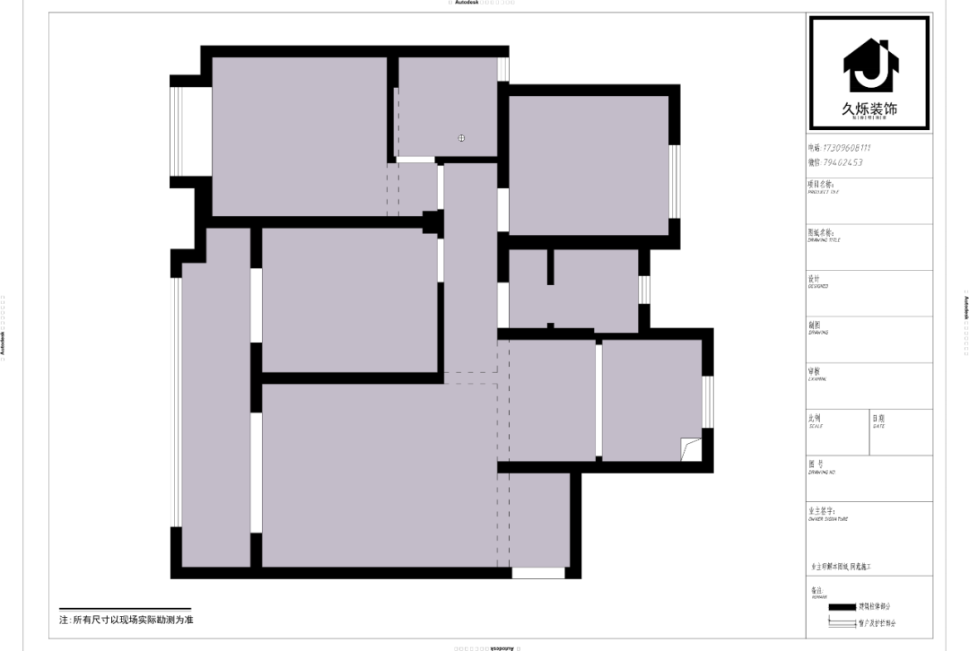
平面户型:

改动后优点
1、将进门卧室与厨房打通,开放式厨房完美契合业主要求。
2、将入户卧室移到客厅位置,保证两个卧室的采光。
3、由于厨房做成开放式,客厅和厨房组成了南北通透的完美格局。
效果图:
从解决客户实际需求出发,打通北卧室和厨房之间的隔墙,做一个敞开式厨房,满足了家人做饭的同时还能与家人聊天,将原来格局改造,彻底变成南北通透的格局。
隐藏了电视背景墙上主卧室的房门,让空间更加完整、协调。减去不必要的灯饰,才能让生活里的美延伸和外化。
将阳台纳入主卧空间,打造出一个开放式衣帽间,满足收纳的同时,也可减少因隔墙带来的空间拥堵问题。
Part.2
住宅面积:118平方
住宅风格:中式风格
主案设计:主案设计师——郭建伟
关于房主:
我希望家就是比较简单、舒适、自在,因为它是你跟家里人相处的空间,是一个安置心灵的地方,让大家都觉得很自在的地方。出于爱人的红木情怀,决定新家中融入了很多中式元素。
当爱人选择中式风格时,我还是持有不同意见的,我喜欢既活泼又稳重的风格,喜欢那些有质感的木质家具,但又不喜欢木质的冰冷又坚硬的感觉,当设计师给我解释新中式的特点————古典而又新型,可以既活泼又不失稳重,才下定决心选择了新中式。
(因为和上面的户型一样,我们这里就不过多的介绍了)
平面户型:

改动后优点
1、入户左右有两面鞋柜,增加了玄关处的收纳功能。
2、将厨房换到入户卧室处,将餐厅扩大,合理分配空间。
3、将卫生间扩大,做到干湿分离,同时保证客厅餐厅空间的连贯性。
全景效果
添加小编微信czjs99即可查看全景图哦~
Part.3
住宅面积:89平方
住宅风格:北欧风格
主案设计:主案设计师——马超
关于房主:
在一家北欧企业工作,斯堪的纳维亚的设计风格不光在产品上,工作环境和办公室的设计也是同样的被延续。所以第一影响是选择了北欧的装修风格,第二印象是相对其他风格的北欧装修更加的简约实用(大实话是便宜,省钱)。
原始户型:

原户型优点
户型方正,无浪费空间。满足日常家庭所需,是一套十分的刚需住宅房屋。
平面户型:

改动后优点
为了加大空间利用率,增大卧室空间,直接把三房改成了两房,把原来北卧室的位置改成了衣帽间。
全景效果:
添加小编微信czjs99即可查看全景图哦~
Part.4
住宅面积:110平方
住宅风格:现代风格
主案设计:主案设计师——池邦阳
关于房主:
业主静姐和波哥都是小学老师,他们有一个可爱的女儿。找到我们的时候,静姐已经聊过几家装修公司了,但一直都没有定下来。用他们原话是:他们装修出来的每套看起来都差不多。我知道了:他们是想要打造一个专属定制、与众不同的梦想house。这也是我们一直在做的事。
原始户型:

原户型优点
1、户型方正,朝向南,卧室房间采光非常好,满足日常家庭所需。
2、客厅面积比较大,整个空间灵活多变。
平面户型:

改动后优点
1、将原有衣帽间改成开放式衣帽间,加入一组书桌,满足业主需求。
效果图:

电视背景墙与收纳柜融合,皆采用木面装饰,下部原木色的抽槽打破整面白色的空洞,带来暖色调的温润。
阳台的门藏在电视背景墙的一侧,选用同色系的隐形门,美观之下又和谐的隠于整个空间的现代风格中。
本次时光澜庭效果图放送就到这里啦……
看不过瘾的朋友可以添加客服微信:czjs99
查看更多效果图哦~更有实景工地可以现场带看哦~
家是一个人安放身心的地方,设计不仅仅要考虑人居空间的安全性、健康性和舒适性,在材料上要体现尊贵感与品质感,还需要在美学上赋予空间高雅的格调,实现体验感。
这是久烁装饰设计上遵循的理念,当运用到家庭住宅中,久烁同样坚持用品质感、安全性能、舒适性来规范设计,以臻尚的空间体验转换、附加其家的味道。
内容为转载或编者观点,不代表装一网意见,不承担法律责任
装一网公众号

装一网家居号

热门文章
猜你喜欢
【武汉山水人家装饰】中建铂公馆112平奶油风

【重庆业之峰装饰】润兰之城126㎡三居现代简约风格案例

泽信湖畔现代简约

【南宁星艺装饰】星海银沙100平中古风实景

精致时尚范 240㎡美式轻奢风

东山墅550㎡简约中式混搭风格装修案例

【重庆佳天下装饰】千江凌云100平 田园风格

武汉业之峰装饰|116㎡复古混搭风装修效果图

【重庆业之峰装饰】金科博翠山麓160m²复式 现代轻奢装修案例

【南宁星艺装饰】津头小区150平法式奶油风格

免费设计
在线报价
智选公司
全屋定制
整体软装