64㎡老房翻新,重新绽放第二春!
今天跟大家分享一套老房翻新的成功案例,无论是房型的规划设计,还是空间的色彩搭配,都很精彩出挑。从这套案例中,仿佛就可以看到即将到来的春天的颜色,这明亮的色调也希望给大家带来一早的好心情。
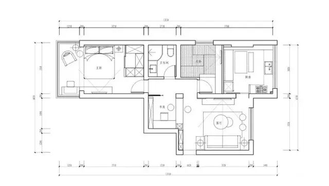
房屋面积 64㎡
装修风格 简约混搭
户型做了一点小改动:一是砌了堵墙把厨房扩大客卧相对缩小(原户主是打通做客厅的);二是入门左边做了个吧台,围成一个开放式书房(原房东做了个储藏室);三是客卧全部做成榻榻米(不考虑儿童房)。
客厅大改造
原本改造前的客厅是被原房主木板隔间出一个走廊,对于空间规划来说显然是不够合理的。
改造后的客厅一下子高端了起来,木板隔断被拆掉,让整个客厅空间十分宽敞。
淡蓝色的墙面衬托出了客厅的质感,地上的斑马纹地毯也是家里的点睛之笔。
客厅的茶几是很多朋友来做客时都很赞赏的家具之一,放在家里很有设计感。
改造前的厨房空间还蛮大,但是对于空间的利用率并不高,布局不是很合理。
经过设计师巧手改造之后,厨房空间变的利用率超高!不仅涵盖了厨房应该有的功能,同时还增添了餐厅区域,彩色的小方砖很有春天的感觉。
另一侧的厨房空间也并没有被浪费,小吧台的设计很有情调,另一侧的大书架还可以作为书房的区域,很实用。
浴室淋浴间
原来的卫浴间实在是狭窄,使用起来肯定不方便舒适。
墙面上的彩色方砖,提亮了整个卫浴间的质感。翻新后还特别隔出了干湿分离的淋浴空间,十分实用。
主卧撞色
卧室房型十分方正,空间也不小,稍加改造就可以有不错的效果。
亮黄色的座椅可是卧室里的一大亮点,和墙上的抽象画摆在一起,艺术气息十足。
内容为转载或编者观点,不代表装一网意见,不承担法律责任
装一网公众号

装一网家居号

热门文章
猜你喜欢
中央公园138 中古

金地名峰125 现代

蔚蓝家园147 法式

中海臻如府188 轻奢

【三宅一生装饰】胜美家园.后现代简约装修效果

【唐卡装饰】珊瑚水岸

160平大户型米四居室现代简约风格装修

老房改造专家 · 北欧风格 · 建邦华庭

重庆俏业家装饰 长嘉汇 156平米 四居室 现代黑白灰实景图

地中海风格效果图

免费设计
在线报价
智选公司
全屋定制
整体软装